MULTI-FAMILY
HOMES UNDER 1,500 SQ. FT
HOMES OVER 1,500 SQ. FT
VACATION HOMES
SOUTHWESTERN HOMES
NARROW LOT HOMES
GARAGE LOFTS
GARDEN HOUSES
GARAGES
HOME
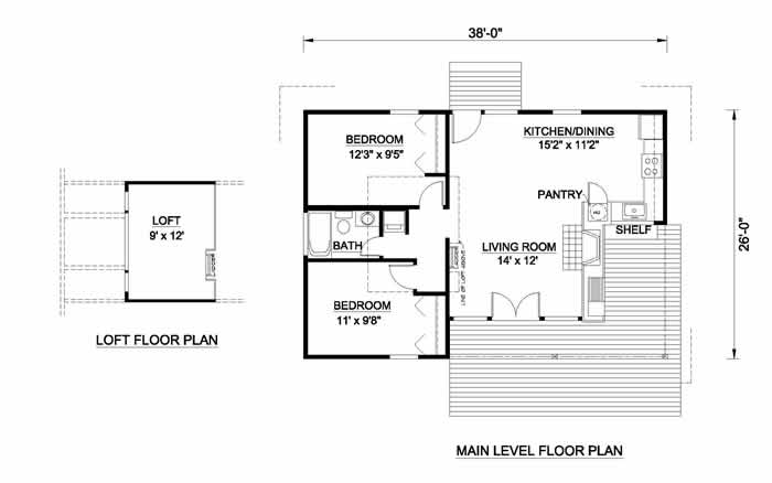
Plan No. C-991
Marshall Architecture, P.C.
5101 S. Clarkson St. > Greenwood Village, CO 80121
303/781-4149 > fax: 303/781-9398
info@marshallarchitecture.com