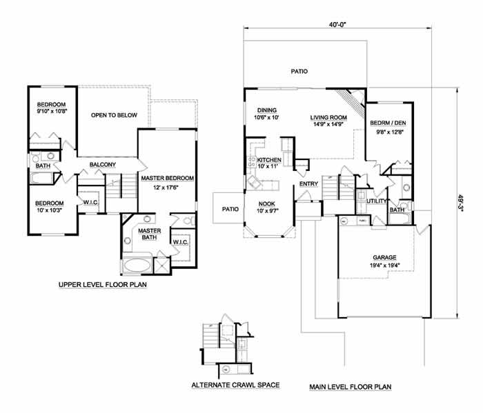
Affordable, Traditional, USDA Homes Marshall Architecture
    
      

 

Plan No. H-9309

 

 

Marshall Architecture, P.C.
5101 S. Clarkson St. > Greenwood Village, CO 80121
303/781-4149 > fax: 303/781-9398
info@marshallarchitecture.com